|
|
 |
| ImmoID: 2434 | Möbliertes Studentenappartement in Freiburg - KEINE KÄUFERPROVISION |
|
| |
 |
| Detailansicht |
zurück |
 |
| |
|
Umgebungskarte
|
| |
 |
| Weitere Ansichten |
 |
| |
|
| |
 |
| Daten |
 |
| |
| Beschreibung: | Auch hier verbinden sich auf hohem Niveau eine anspruchsvolle Architektur und gelungene Apartments mit überdurchschnittlicher Qualität und Ausstattung. Das langfristig orientierte, professionelle Management wird von der International Campus AG als Betreiber unter der Marke übernommen; es entsteht eine Wohnanlage, die den Studierenden gemäß dem Motto "Living cum laude" einen deutlichen Mehrwert und Ihnen als Käuferinnen und Käufer der Apartments eine ideale, langfristig werthaltige Kapitalanlage mit stabiler Rendite bietet.
In dieses Projekt wurde viel Erfahrung eingebracht, und dieses Konzept ist vollständig überzeugend. In dieser Wohnanlage werden sich die Studierenden wohlfühlen. Und hier stimmt die Mischung aus Rendite, Qualität, Service, Management, Ausstattung und Standort.
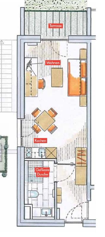
Möbliertes Apartment
Die hochwertige Möblierung des Apartments folgt dem Prinzip, dass die Studierenden mit geringstmöglichem Aufwand die Apartments beziehen können, ohne zeitintensive Möbeleinkäufe oder aufwändige Umzüge. Das Studium bleibt im Mittelpunkt. Das Apartment ist zwar komplett möbliert, bietet den Studierenden aber genügend Gestaltungsspielraum für die Individualisierung. Zur Grundausstattung des Apartment gehören ein Wohnbereich mit Beleuchtung, Bett, Schreibtisch, Schreibtischstuhl, Regalen und Einbauschränken, eine moderne Kitchenette mit Zweizonenglaskeramikkochfeld, Kühl-/Gefriergerät, Mikrowelle u.a., ein hochwertig ausgestattetes, beleuchtetes Bad mit Dusche samt Teilglasabtrennung, Handtuchheizkörper und Waschtischunterschrank. Das Bad enthält Markenfliesen von Villeroy & Boch und der Wohnbereich ist mit dem ästhetischen und bewährt robusten Designbelag Casa Nova ausgelegt. Das Apartment ist mit einem Highspeed-Internet-Anschluss versorgt und erhält zur einfachen Kontrolle des Zugangs eine Türsprechanlage mit Video-Farbdisplay. Das Apartment hat eine gut nutzbare Erdterrasse, die zur besonderen Wohnqualität beiträgt. |
| Ort: | 79108 Freiburg |
| |
| Lage: | Eine Wohnlage, die eine perfekte Infrastruktur und eine moderne studiergerechte Wohnatmosphere bietet!
Der Stadtteil Freiburg Zähringen bietet alles, was das Herz begehrt: Eine sehr gute Infrastruktur mitzahlreichen Einkaufsmöglichkeiten, Ärzten, Apotheken und einem vielseitigen Angebot an Sportstätten. Ebenfalls sind zahlreiche Geschäfte, Cafés und gastronomische Angebote sowie ein großer Supermarkt. Die Straßenbahnlinie 2 Richtung Innenstadt und Universität ist nur eine Minute zu Fuß entfernt. Die Straßenbahn fährt alle sechs Minuten, somit ist ein komfortabler und bequemer Lebenstil gewährleistet. Sogar am Wochenende fährt diese Bahnlinie nachts und am Tag. |
| Ausstattung: | + geschmackvoll möblierte Zimmer
+ Küche mit Herd
+ Designbodenbelag
+ hochwertige Fließen von Villeroy & Boch in den Bädern
+ Echtglasverarbeitung in den Duschen
+ Gegensprechanlage mit Videofarbdisplay
+ High- Speed- Internet- Anschluss
+ Balkon / Terrasse
+ Garagenstellplatz
+ Fahrradabstellplatz
+ Lounge Bereich mit Waschmaschinen und Trocknern
+ Gemeinschaftsräume
+ Computerbereich
+ Lernräume |
| Sonstiges: | Baujahr: 2014
Energiekennwert: 88 kWh/(m²*a)
Befeuerung/Energieträger: Pelletheizung
Energieausweistyp: Bedarfsausweis
Heizungsart: Zentralheizung
Energieeffizienzklasse: C
Momantan stehen noch ein Tiefgaragenstellplatz zur Verfügung. Falls Sie sich für einen Tiefgaragenplatz entscheiden sollten, käme dieser mit 20.000,00 Euro zum Kaufpreis für die Wohnung hinzu.
Sie möchten Ihre Immobilie verkaufen?! - Wir freuen uns über Ihren Anruf unter 0761-16699
Service und Freundlichkeit werden bei uns groß geschrieben - rufen Sie uns einfach an - wir freuen uns auf das Gespräch und vereinbaren sehr gerne einen Termin.
Unser Familienunternehmen AKTIVA Immobilien im Breisgau wurde 1982 von Wolfgang Discher am alten Freiburger Messplatz gegründet.
Heute sind wir ein Team mit insgesamt sechs Mitarbeitern. Unser familiär geführter, mittelständischer Diplombetrieb besteht aus Sachverständigen, Immobilienwirten und gelernten Immobilienkaufleuten.
Vorrangig sind wir in der Vermittlung von Mehrfamilienhäusern, Einfamilienhäusern, Kapitalanlagen, Eigentumswohnungen, Gewerbeimmobilien und Baugrundstücken in den bevorzugten Lagen Freiburgs und des Umlands tätig.
Besuchen Sie uns doch auf unserer Homepage: www.AKTIVA-Immobilien.de
Wir freuen uns auf Sie! |
| |
| Kaufpreis: | 181.500,00 € |
| |
| Anzahl Zimmer: | 1 |
| Wohnfläche: | 33 m² |
| |
| Courtage Käufer: | 0 inkl. MwSt |
| Anbieter-Objekt-Nr.: | 6067562 |
| Daten Energieausweis: | Befeuerungsart: Solar Baujahr: 2014 Wertklasse: C
|
| Angaben Energieausweis: | Energieausweistyp: 2 Energiepass Kennwert: 88.00 Energiewert inkl. Warmwasser: nein Energiepass Wertklasse: C Befeuerungsart: Pelletheizung Angaben soweit uns vorliegend, bzw. verfügbar. |
|
| |
 |
| Immo-SuchAgent () |
 |
| |
| Einfach die Eckdaten Ihrer Wunschimmobilie eingeben und auch in Zukunft informiert bleiben! |
| |
 |
| Objektmerker |
 |
| |
| Dem Objektmerker hinzufügen. |
| |
 |
| Kontaktformular |
 |
| |
|
|
| |
| Rechtlicher Hinweis: Für die Inhalte sowie Richtigkeit und Aktualität des Angebots ist allein der Anbieter verantwortlich. Weitere gesetzlich vorgeschriebene Angaben zum Anbieter entnehmen Sie bitte, sofern nicht unter den weiteren Informationen des Anbieters angegeben, dessen eigener Webseite die wir unter genannter Seite anführen. Wenn Sie Ihre Telefonnummer angeben, geben Sie Ihre Einwilligung vom Anbieter zurückgerufen zu werden. |
|
 |
|